Ferlinge Stasjonsstrjitte 108 b 9271 CG DE WESTEREEN
€ 435.000 Vrij op naam
Status:
Omschrijving
Wonen in de Fryske Wâlden – comfortabel, eigentijds en energiezuinig
Ontdek het beste van de Fryske Wâlden in dit kleinschalige nieuwbouwproject in het levendige dorp De Westereen. Hier verrijzen vier stijlvolle, luxe en duurzame koopappartementen op een fraaie locatie. De bouw is inmiddels gestart – alleen de boven appartementen zijn nog beschikbaar, dus wees er snel bij!
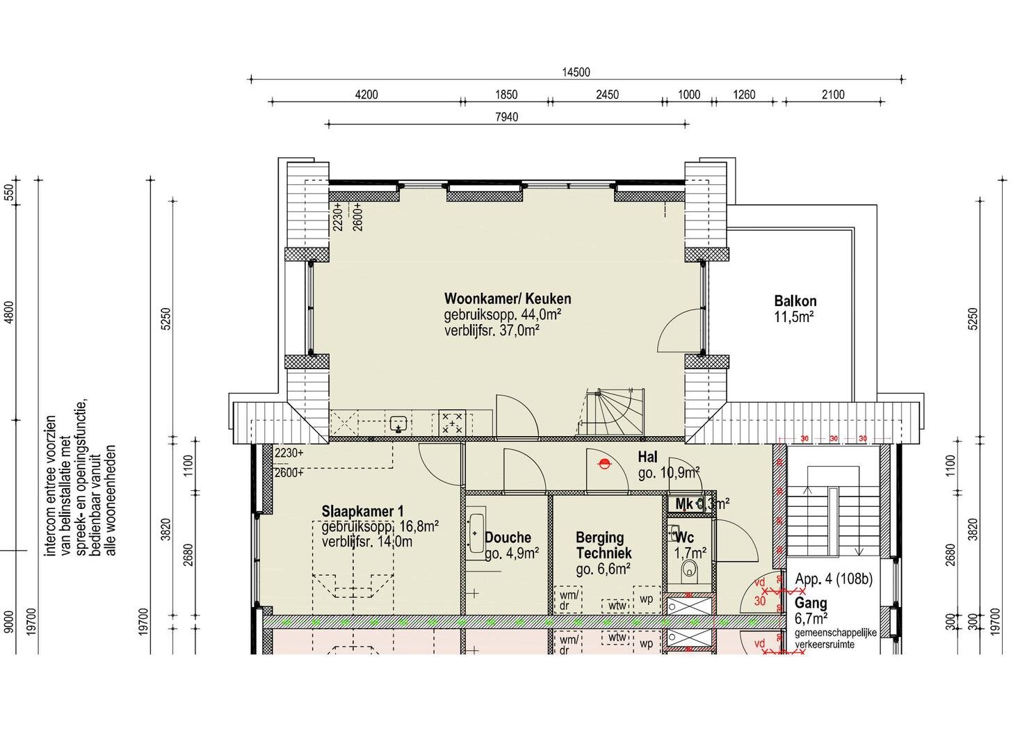
De appartementen zijn ontworpen door Egbert Zwarts (De Westereen) en combineren moderne architectuur met optimaal wooncomfort. Met een woonoppervlak van ruim 109 m², royale balkons en sfeervolle livings met vide geniet u van een lichte, open en eigentijdse woonbeleving. Dankzij het balkon heeft u altijd een fijne buitenruimte, zonder het onderhoud van een tuin.
Het complex wordt gasloos en energiezuinig gebouwd, voorzien van onder meer een water/water-warmtepomp, vloerverwarming (ook koeling) en 8 zonnepanelen. De hoogwaardige afwerking, inclusief een moderne inbouwkeuken, Villeroy & Boch sanitair en kunststof kozijnen, maakt het geheel compleet. Op eigen terrein beschikt ieder appartement bovendien over een eigen parkeerplaats en berging.
Dankzij de aanwezigheid van een lift zijn de appartementen geschikt voor jong en oud. Alles wat u nodig heeft vindt u in de directe omgeving: winkels, openbaar vervoer (inclusief treinstation), sportfaciliteiten, scholen en huisarts liggen allemaal op loop- of fietsafstand. De omringende natuur met haar vele wandel- en fietspaden maakt wonen hier extra aantrekkelijk.
Het complex wordt zeer energiezuinig, degelijk en met vakmanschap gebouwd door een plaatselijk bouwbedrijf. Ook het installatiewerk wordt uitgevoerd door een lokaal, deskundig bedrijf. Als eigenaar bent u daardoor verzekerd van een woning van hoge kwaliteit.
Bouwnummers en prijzen:
• Bouwnummer 1 (101 m²): verkocht
• Bouwnummer 2 (101 m²): verkocht
• Bouwnummer 3 (109 m²): € 435.000,- v.o.n.
• Bouwnummer 4 (109 m²): € 435.000,- v.o.n.
Ontdek het beste van de Fryske Wâlden in dit kleinschalige nieuwbouwproject in het levendige dorp De Westereen. Hier verrijzen vier stijlvolle, luxe en duurzame koopappartementen op een fraaie locatie. De bouw is inmiddels gestart – alleen de boven appartementen zijn nog beschikbaar, dus wees er snel bij!
De appartementen zijn ontworpen door Egbert Zwarts (De Westereen) en combineren moderne architectuur met optimaal wooncomfort. Met een woonoppervlak van ruim 109 m², royale balkons en sfeervolle livings met vide geniet u van een lichte, open en eigentijdse woonbeleving. Dankzij het balkon heeft u altijd een fijne buitenruimte, zonder het onderhoud van een tuin.
Het complex wordt gasloos en energiezuinig gebouwd, voorzien van onder meer een water/water-warmtepomp, vloerverwarming (ook koeling) en 8 zonnepanelen. De hoogwaardige afwerking, inclusief een moderne inbouwkeuken, Villeroy & Boch sanitair en kunststof kozijnen, maakt het geheel compleet. Op eigen terrein beschikt ieder appartement bovendien over een eigen parkeerplaats en berging.
Dankzij de aanwezigheid van een lift zijn de appartementen geschikt voor jong en oud. Alles wat u nodig heeft vindt u in de directe omgeving: winkels, openbaar vervoer (inclusief treinstation), sportfaciliteiten, scholen en huisarts liggen allemaal op loop- of fietsafstand. De omringende natuur met haar vele wandel- en fietspaden maakt wonen hier extra aantrekkelijk.
Het complex wordt zeer energiezuinig, degelijk en met vakmanschap gebouwd door een plaatselijk bouwbedrijf. Ook het installatiewerk wordt uitgevoerd door een lokaal, deskundig bedrijf. Als eigenaar bent u daardoor verzekerd van een woning van hoge kwaliteit.
Bouwnummers en prijzen:
• Bouwnummer 1 (101 m²): verkocht
• Bouwnummer 2 (101 m²): verkocht
• Bouwnummer 3 (109 m²): € 435.000,- v.o.n.
• Bouwnummer 4 (109 m²): € 435.000,- v.o.n.
Kenmerken
Over dit object
Overdracht
| Status | beschikbaar |
|---|---|
| Prijs | € 435.000 v.o.n. |
Bouw
| Bouwjaar | 2026 |
|---|---|
| Bouwvorm | nieuwbouw |
| Type Object | Appartement |
| Hoofdfunctie | Woonruimte |
Indeling
| Woonoppervlakte | 109 m² |
|---|---|
| Woning Inhoud | 375 m³ |
| Kamers | 3 (2 slaapkamers) |
Energie
| Energielabel | A+++ |
|---|
Refresh to make it work.
Plan een bezichtiging
voor: Ferlinge Stasjonsstrjitte 108 b
Bel ons op 0511 469 048 voor direct contact.
Of laat uw gegevens achter en wij nemen zo snel mogelijk contact met u op.







