Lageweg 8 9251 JW BURGUM
€ 259.500 Kosten koper
Status:
Omschrijving
Ruim pand met vele mogelijkheden in het centrum van Burgum.
Op een uitstekende locatie, midden in het centrum van Burgum, bevindt zich dit goed onderhouden pand van ca. 373 m² met tal van gebruiksmogelijkheden!
Het pand heeft de bestemming ‘centrumdoeleinden’, wat betekent dat het geschikt is voor uiteenlopende functies, zoals:
- Wonen
- Detailhandel
- Dienstverlenende bedrijven (bijv. kantoor of praktijkruimte)
- (Horeca)bedrijven (categorie 1 en 2)
- Of een combinatie van deze functies
Tot voor kort was de begane grond jarenlang succesvol in gebruik als winkelruimte (bloemenzaak), met opslag- en werkruimte op de verdieping.
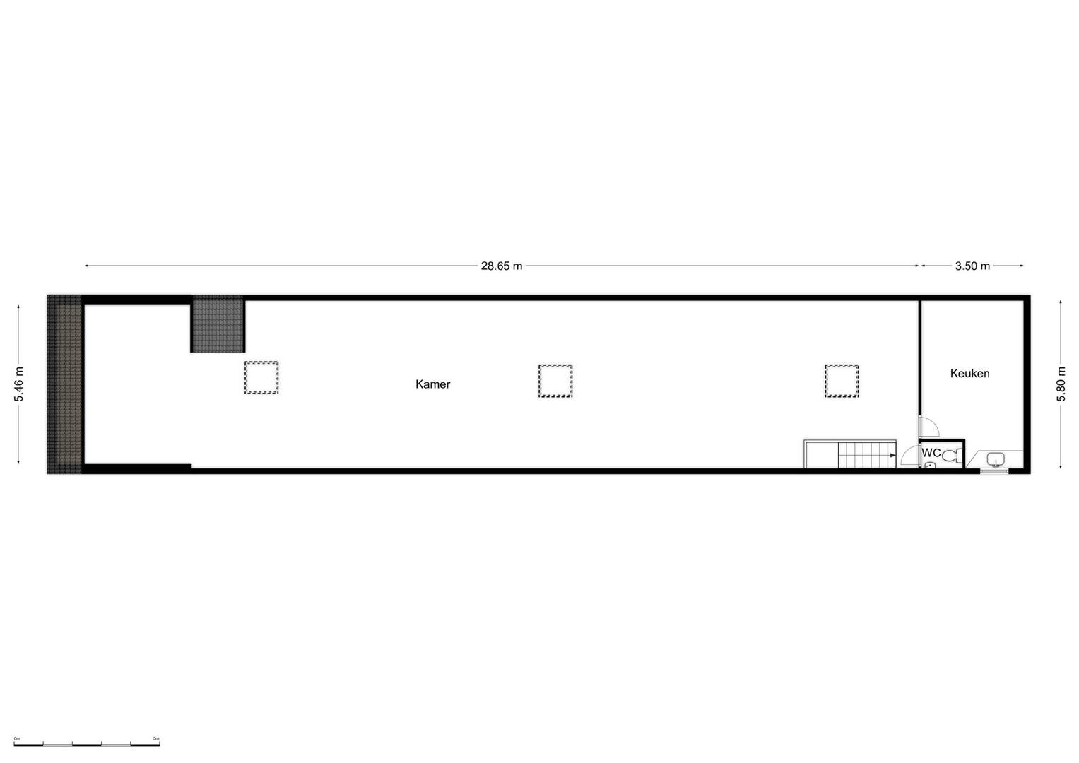
Begane grond: ca. 187 m²
Verdieping: ca. 186 m²
Totale oppervlakte: ca. 373 m²
Perceeloppervlakte: 235 m² eigen grond
Verwarming vindt plaats via centrale verwarming. Er is geen achterom/achteruitgang aanwezig.
Alle denkbare voorzieningen van Burgum, winkels, horeca, openbaar vervoer en andere voorzieningen, bevinden zich op loop- en fietsafstand.
Kortom: een ruim en veelzijdig object op een goede locatie met tal van mogelijkheden voor wonen, werken en ondernemen!
Het dorp Burgum ligt op de grens van ‘De Wâlden’ en ‘It Wetterlân’. Burgum wordt daarom wel ‘doarp tusken wâld en wetter’ genoemd (dorp tussen woud en water). Burgum telt ruim 10.000 inwoners en is daarmee de hoofdplaats van de gemeente Tytsjerksteradiel. Burgum heeft o.a. een uitgebreid
winkelcentrum met leuke winkels en diverse horeca, vele sportfaciliteiten waaronder overdekt zwembad, bibliotheek, artsen, fysiotherapeuten, kinderopvang, basis- en voortgezet onderwijs, openbaar vervoer en prima uitvalswegen.
Op een uitstekende locatie, midden in het centrum van Burgum, bevindt zich dit goed onderhouden pand van ca. 373 m² met tal van gebruiksmogelijkheden!
Het pand heeft de bestemming ‘centrumdoeleinden’, wat betekent dat het geschikt is voor uiteenlopende functies, zoals:
- Wonen
- Detailhandel
- Dienstverlenende bedrijven (bijv. kantoor of praktijkruimte)
- (Horeca)bedrijven (categorie 1 en 2)
- Of een combinatie van deze functies
Tot voor kort was de begane grond jarenlang succesvol in gebruik als winkelruimte (bloemenzaak), met opslag- en werkruimte op de verdieping.
Begane grond: ca. 187 m²
Verdieping: ca. 186 m²
Totale oppervlakte: ca. 373 m²
Perceeloppervlakte: 235 m² eigen grond
Verwarming vindt plaats via centrale verwarming. Er is geen achterom/achteruitgang aanwezig.
Alle denkbare voorzieningen van Burgum, winkels, horeca, openbaar vervoer en andere voorzieningen, bevinden zich op loop- en fietsafstand.
Kortom: een ruim en veelzijdig object op een goede locatie met tal van mogelijkheden voor wonen, werken en ondernemen!
Het dorp Burgum ligt op de grens van ‘De Wâlden’ en ‘It Wetterlân’. Burgum wordt daarom wel ‘doarp tusken wâld en wetter’ genoemd (dorp tussen woud en water). Burgum telt ruim 10.000 inwoners en is daarmee de hoofdplaats van de gemeente Tytsjerksteradiel. Burgum heeft o.a. een uitgebreid
winkelcentrum met leuke winkels en diverse horeca, vele sportfaciliteiten waaronder overdekt zwembad, bibliotheek, artsen, fysiotherapeuten, kinderopvang, basis- en voortgezet onderwijs, openbaar vervoer en prima uitvalswegen.
Kenmerken
Over dit object
Overdracht
| Status | beschikbaar |
|---|---|
| Prijs | € 259.500 k.k. |
Bouw
| Bouwjaar | 1970 |
|---|---|
| Bouwvorm | bestaande bouw |
| Type Object | Woonhuis |
| Hoofdfunctie | Woonruimte |
Indeling
| Woonoppervlakte | 100 m² |
|---|---|
| Perceeloppervlakte | 235 m² |
| Woning Inhoud | 1000 m³ |
| Kamers | 4 (2 slaapkamers) |
Energie
| Energielabel | A |
|---|
Refresh to make it work.
Plan een bezichtiging
voor: Lageweg 8
Bel ons op 0511 469 048 voor direct contact.
Of laat uw gegevens achter en wij nemen zo snel mogelijk contact met u op.



















