Roggemounewei 51 9251 JM BURGUM
€ 285.000 Kosten koper
Status:
Omschrijving
Onderhoudsarme en verduurzaamde woning met verrassend veel ruimte!
Op een goede en kindvriendelijke locatie, op loop- en fietsafstand van het centrum van Burgum, staat deze verzorgde tussenwoning aan de Roggemounewei 51. Een ideale (gezins)woning met groen/vrij uitzicht over gemeentelijk groen, vier ruime slaapkamers, en alle voorzieningen in de buurt.
Deze goed onderhouden woning verkeert in keurige staat en is de afgelopen jaren behoorlijk verduurzaamd. De 1e verdieping van de woning is in 2024 geheel voorzien van vernieuwde kunststof kozijnen met HR++ isolatieglas evenals de voordeur. Verder is er sprake van recente dakisolatie en een 8-tal zonnepanelen (2023 totaal ca. 3200 WP). Verwarming en warmwatervoorziening geschiedt door middel van een HR c.v.-combiketel. De energielasten zijn laag en de woning beschikt over een nieuw groen A energielabel!
De achtertuin met brede achterom en ruime stenen berging is onderhoudsvriendelijk ingericht, ideaal om na een drukke dag even buiten te genieten. Daarnaast bevindt zich aan de voorzijde een beschut zonneterras(je) op het zuiden.
In de straat is er voldoende parkeergelegenheid en je auto kan je veelal ‘voor de deur’ openbaar in parkeren.
Op loopafstand bevinden zich o.a. scholen, sportfaciliteiten, openbaar vervoer, huisartsenpraktijk, het uitgebreide winkelcentrum etc..
De woning is gesitueerd op 171 m² eigen grond en zeer nabij speeltuin gelegen.
Deze woning is uitermate geschikt voor starters of jonge gezinnen die op zoek zijn naar een verzorgde woning in een gezellige en kindvriendelijke woonomgeving.
Begane grond: voor-entree, hal met praktische trapkast, toilet, zonnige strakke woonkamer met vrij/groen uitzicht over gemeentelijk groen, keuken met achter-entree en nette gemoderniseerde hoekopstelling v.v. diverse inbouwapparatuur.
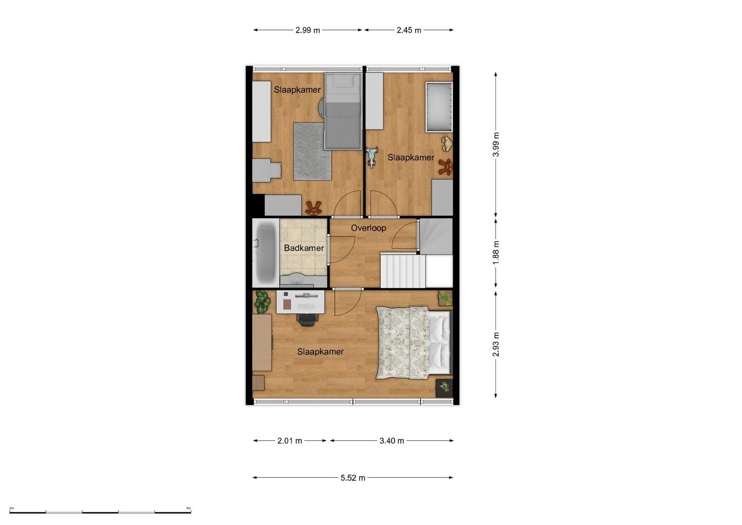
1e verdieping: overloop, 3 ruime slaapkamers, nette badkamer met ligbad/douche en wastafelmeubel.
2e verdieping: vaste trap naar royale en strak afgewerkte zolderkamer met dakraam, recent goed geïsoleerde kap en witgoed-, c.v.- en bergruimtes.
Alle verdiepingen zijn voorzien van moderne laminaatvloeren.
Op een goede en kindvriendelijke locatie, op loop- en fietsafstand van het centrum van Burgum, staat deze verzorgde tussenwoning aan de Roggemounewei 51. Een ideale (gezins)woning met groen/vrij uitzicht over gemeentelijk groen, vier ruime slaapkamers, en alle voorzieningen in de buurt.
Deze goed onderhouden woning verkeert in keurige staat en is de afgelopen jaren behoorlijk verduurzaamd. De 1e verdieping van de woning is in 2024 geheel voorzien van vernieuwde kunststof kozijnen met HR++ isolatieglas evenals de voordeur. Verder is er sprake van recente dakisolatie en een 8-tal zonnepanelen (2023 totaal ca. 3200 WP). Verwarming en warmwatervoorziening geschiedt door middel van een HR c.v.-combiketel. De energielasten zijn laag en de woning beschikt over een nieuw groen A energielabel!
De achtertuin met brede achterom en ruime stenen berging is onderhoudsvriendelijk ingericht, ideaal om na een drukke dag even buiten te genieten. Daarnaast bevindt zich aan de voorzijde een beschut zonneterras(je) op het zuiden.
In de straat is er voldoende parkeergelegenheid en je auto kan je veelal ‘voor de deur’ openbaar in parkeren.
Op loopafstand bevinden zich o.a. scholen, sportfaciliteiten, openbaar vervoer, huisartsenpraktijk, het uitgebreide winkelcentrum etc..
De woning is gesitueerd op 171 m² eigen grond en zeer nabij speeltuin gelegen.
Deze woning is uitermate geschikt voor starters of jonge gezinnen die op zoek zijn naar een verzorgde woning in een gezellige en kindvriendelijke woonomgeving.
Begane grond: voor-entree, hal met praktische trapkast, toilet, zonnige strakke woonkamer met vrij/groen uitzicht over gemeentelijk groen, keuken met achter-entree en nette gemoderniseerde hoekopstelling v.v. diverse inbouwapparatuur.
1e verdieping: overloop, 3 ruime slaapkamers, nette badkamer met ligbad/douche en wastafelmeubel.
2e verdieping: vaste trap naar royale en strak afgewerkte zolderkamer met dakraam, recent goed geïsoleerde kap en witgoed-, c.v.- en bergruimtes.
Alle verdiepingen zijn voorzien van moderne laminaatvloeren.
Kenmerken
Over dit object
Overdracht
| Status | beschikbaar |
|---|---|
| Prijs | € 285.000 k.k. |
Bouw
| Bouwjaar | 1971 |
|---|---|
| Bouwvorm | bestaande bouw |
| Type Object | Woonhuis |
| Hoofdfunctie | Woonruimte |
Indeling
| Woonoppervlakte | 123 m² |
|---|---|
| Perceeloppervlakte | 171 m² |
| Woning Inhoud | 423 m³ |
| Kamers | 5 (4 slaapkamers) |
Energie
| Energielabel | A |
|---|
Refresh to make it work.
Plan een bezichtiging
voor: Roggemounewei 51
Bel ons op 0511 469 048 voor direct contact.
Of laat uw gegevens achter en wij nemen zo snel mogelijk contact met u op.











































